首页
专利数据库
产业人才
行业动态
产业政策法规
维权援助
个人中心
登录/注册
详情
文本
图像
标题:
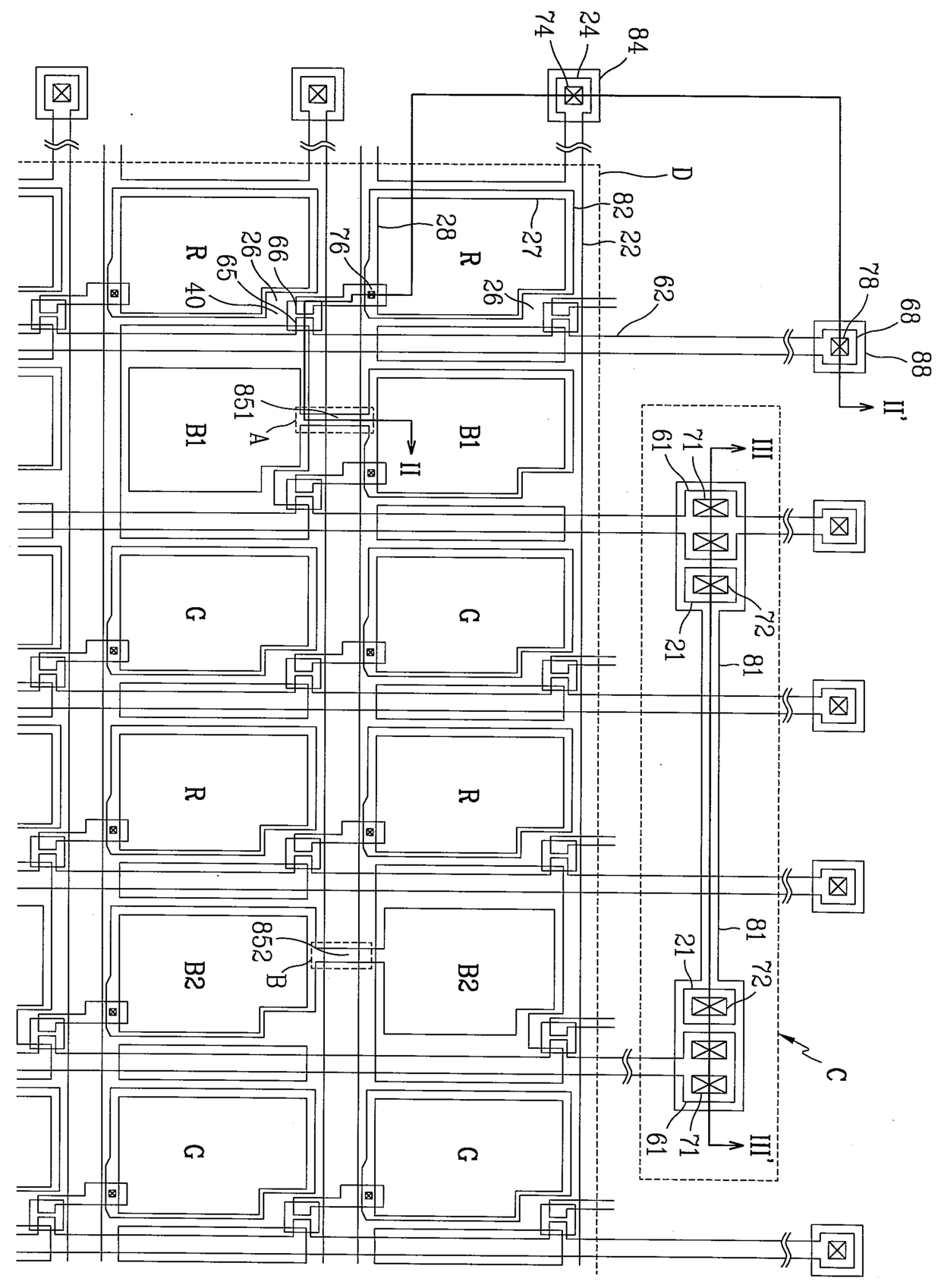
액정 표시 장치
授权日:
1900-01-01
公开(公告)号:
KR1020030013149A
申请日:
2001-08-07
公开(公告)日:
2003-02-14
当前申请(专利权)人:
삼성전자주식회사
发明人:
홍문표 | 노남석 | 채종철 | 신경주
简单同族:
KR100806897B1 | KR1020030013149A | TW573202B | US20040021804A1 | US6833890 | WO2003014819A1
简单同族成员数量:
6
简单同族被引用专利总数:
145
诉讼案件数:
0
法律状态/事件:
未缴年费 | 权利转移