首页
专利数据库
产业人才
行业动态
产业政策法规
维权援助
个人中心
登录/注册
详情
文本
图像
标题:
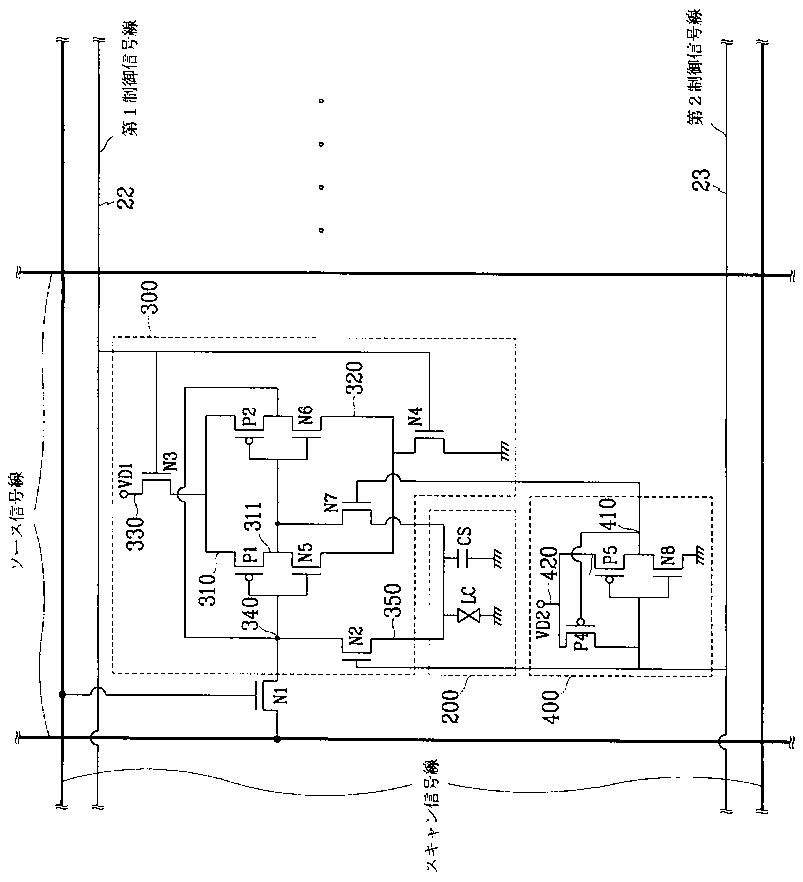
液晶表示装置及びこれの駆動方法
授权日:
2011-06-17
公开(公告)号:
JP4762431B2
申请日:
2001-04-11
公开(公告)日:
2011-08-31
当前申请(专利权)人:
三星電子株式会社
发明人:
李 炯 坤 | 朴 容 九
简单同族:
JP2002229526A | JP4762431B2 | KR100783695B1 | KR1020020050018A | TW538297B | US20020075252A1 | US7095391
简单同族成员数量:
7
简单同族被引用专利总数:
54
诉讼案件数:
0
法律状态/事件:
授权 | 权利转移