标题:
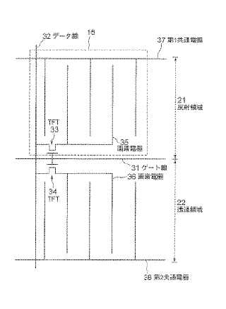
液晶表示装置、及び、その駆動方法
授权日:
1900-01-01
公开(公告)号:
JP2007041572A
申请日:
2006-06-29
公开(公告)日:
2007-02-15
当前申请(专利权)人:
NLTテクノロジー株式会社
发明人:
坂本 道昭 | 永井 博 | 森 健一 | 松嶋 仁 | 中 謙一郎 | 井上 大輔 | 住吉 研 | 工藤 泰樹 | 池野 英徳
简单同族:
CN100476539C | CN101329470A | CN101329470B | CN101887195A | CN101887195B | CN102207650A | CN102207650B | CN102213860A | CN102213860B | CN1892349A | JP2007041572A | JP5077734B2 | KR100807609B1 | KR100885828B1 | KR1020070003707A | KR1020070112349A | TW200710484A | TWI358566B | US20070002226A1 | US20100171775A1 | US20130208199A1 | US20130208217A1 | US7705937 | US8436967 | US8773623 | US8913219
简单同族成员数量:
26
简单同族被引用专利总数:
170
诉讼案件数:
0
法律状态/事件:
授权