专利数据库
统计分析
产业报告
专利数据监控
产业人才
行业动态
产业政策法规
维权援助
个人中心
详情
文本
图像
标题
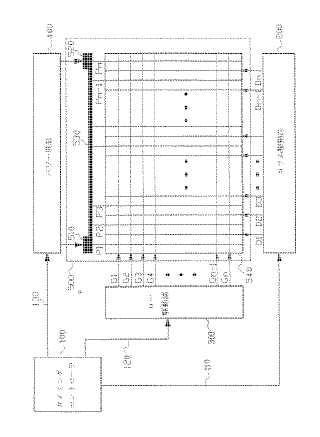
電界発光パネルとこれを有する電界発光装置
授权日
1900-01-01
公开(公告)号
JP2004038176A
申请日
2003-07-07
公开(公告)日
2004-02-05
当前申请(专利权)人
三星電子株式会社
发明人
崔 凡 洛 | 崔 ▲ジュン▼ 厚 | 鄭 鎭 九
简单同族
JP2004038176A | JP4554899B2 | KR100828513B1 | KR1020040003962A | TW200500697A | TWI282462B | US20040004444A1 | US20050133784A1 | US20050189538A1 | US20060244703A1 | US6903513 | US7081716 | US7091669 | US7365496
简单同族成员数量
14
简单同族被引用专利总数
72
诉讼案件数
0
法律状态/事件
授权 | 权利转移
抱歉,您的浏览器不支持PDF预览,请点击链接下载PDF文件